plan
Увеличить
уровень
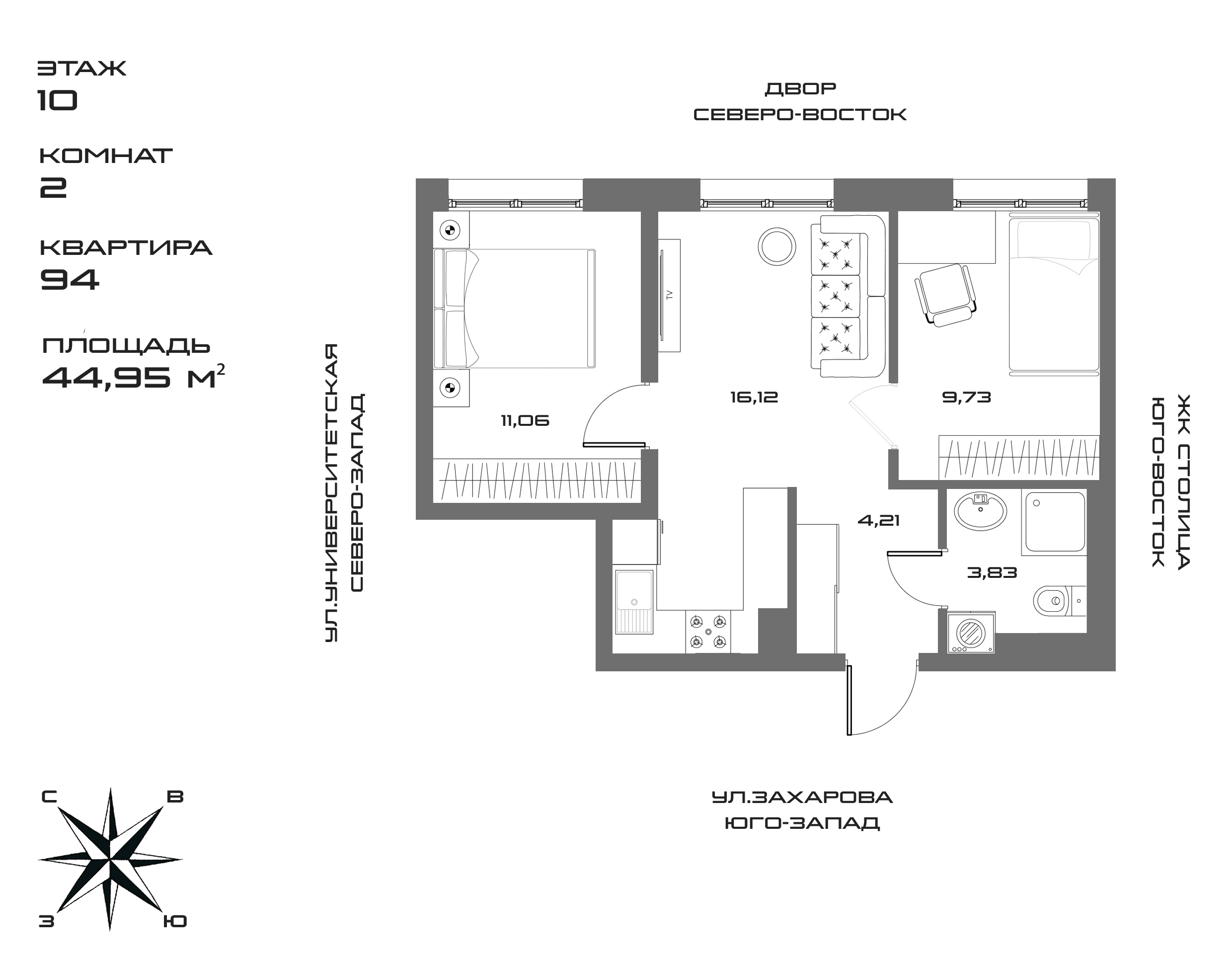
Квартира № 94
8 091 000 ₽ 180 000 ₽ за м2
Проект
Столица.PRIME
Площадь
44.95 м2
Секция
1
Выбор отделки

Выберите подходящий для вас вид отделки от «черновой» до «комфорта»

Черновая отделка Стандарт Комфорт
Выбор отделки
chernovaya.jpg
chernovaya.jpg
standart-1360-png.jpg
standart-1360-png.jpg
komfort-1360-png-_1_.jpg
komfort-1360-png-_1_.jpg
Черновая отделка

Подходит для тех, кто планирует индивидуальное оформление интерьера и хочет самостоятельно выбрать материалы и дизайн помещений.

Стандарт
2000 руб./кв.м.

Полный комплекс отделочных работ с использованием качественных материалов. Включает чистовую отделку стен, пола и потолка, укладку напольных покрытий, монтаж светильников, установку розеток и выключателей.

  • Обои светлые текстурированные под покраску;
  • Плинтуса широкие белые;
  • Качественные входные металлические двери (внутренняя поверхность светлая);
  • Качественные межкомнатные двери (светлые);
  • Натяжные потолки с точечным освещением в зоне кухне и санузле;
  • Качественный линолеум (цвет «серый дуб»);
  • Стены в санузле покрашены водоэмульсионной краской (в серых тонах);
  • В санузле установлен электрический полотенцесушитель.
  • На полу в санузле керамогранит (в серых тонах).
Комфорт
6000 руб./кв.м.

Полный комплекс отделочных работ с использованием качественных материалов. Включает чистовую отделку стен, пола и потолка, укладку напольных покрытий, монтаж светильников, установку розеток и выключателей.

  • Обои светлые текстурированные под покраску;
  • Плинтуса широкие белые;
  • Качественные входные металлические двери (внутренняя поверхность светлая);
  • Качественные межкомнатные двери (светлые);
  • Натяжные потолки с точечным освещением в зоне кухне и санузле;
  • Качественный ламинат (цвет «серый дуб»);
  • В санузле установлен электрический полотенцесушитель;
  • Керамическая плитка на стенах в санузле (светлые тона);
  • На полу в санузле керамогранит (в серых тонах);
  • Ванна или душевая кабина.